Opis produktu
Pozycjoner wideł typ ZVW-S-TGZ na profilach rurowych daje długą żywotność i doskonałą widoczność. System rurowy zapewnia czyste i precyzyjne pozycjonowanie wideł. Niezależny przesuw boczny pozwala na wykorzystania tej funkcji w każdej pozycji rozstawu wideł. Pozycjoner jest wyposażony w widły teleskopowe pozwalający na optymalne procesy załadunku i rozładunku. Widły teleskopowe można wysuwać pod obciążeniem. System daje 100% synchronizacji. Widły wyposażone w 2 mm warstwę odporną na ścieranie.
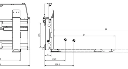
| typ | udźwig kg/mm LC 1 | udźwig kg/mm LC 2 mm | sugerowany udźwig kg/mm LC | ISO | B mm | A mm | długość baza wysuw L1/L2 mm | przekrój b x h mm | przesuw mm | V LLC mm | ESP 1/2 mm | waga kg |
|---|---|---|---|---|---|---|---|---|---|---|---|---|
| ZVW-S-TGZ.35.1200 | 3500/500 | 1630/1450 | 3,0-3,5/500 | III | 1040 1150 |
360-980 360-1090 |
1200/2050 | 161 x 57 | +/- 100 | 127 150 |
290/390 280/380 |
450 460 |
| ZVW-S-TGZ.35.1350 | 3500/500 | 1390/1750 | 3,0-3,5/500 | 1040 1150 |
360-980 360-1090 |
1350/2350 | 161 x 57 | 330/460 320/445 |
468 478 |
|||
| ZVW-S-TGZ.40.1200 | 4000/500 | 1850/1450 | 3,5/600-4,0/500 | 1150 1350 |
390-1070 390-1270 |
1200/2050 | 161 x 57 | 270/350 250/330 |
532 576 |
|||
| ZVW-S-TGZ.40.1350 | 4000/500 | 1550/1750 | 3,5/600-4,0/500 | 1150 1350 |
390-1070 390-1270 |
1350/2350 | 161 x 57 | 305/410 285/385 |
580 594 |
|||
| ZVW-S-TGZ.45.1200 | 5000/600 | 2300/1450 | 4,0-5,0/600 | 1350 | 390-1270 | 1200/2050 | 161 x 62 | 265/345 | 598 | |||
| ZVW-S-TGZ.45.1350 | 5000/600 | 1900/1750 | 5,0/600 | 1350 | 390-1270 | 1350/2350 | 161 x 62 | 300/400 | 620 |
- 3 dodatkowe funkcje hydrauliczne
- z wężami i szybkozłączkami
- seryjnie z listwą ochronną, ze zintegrowaną osłoną węży hydraulicznych
- seryjnie wyposażony w strefę 2 mm odporną na ścieranie oraz w czubki wideł z pełnego odlewu stali
- dodatkowa strefa odporna na ścieranie (grubość 6 mm) za dopłatą 350,- Euro / para
- dopłata za widły przykręcane 770,00 Euro / para
- ograniczniki wjazdu w paletę (patrz strona 198):
Typ A: 75 mm, po bokach wideł, dopłata 260,- Euro
Typ B: o wysokości 400 mm, dopłata 200,- Euro
Typ C: o wysokości 850 mm, dopłata 430,- Euro
Typ B i C skraca użyteczną długość o 50 mm
W momencie zamówienia należy podać miejsce ograniczników - dopłata za elektrozawór 1.120,- Euro
(12V, 24V, 48V, 80V — należy podać napięcie) - klasa ISO A w standardzie, ISO B za dopłatą
Potrzebujesz więcej informacji?
Skontaktuj się z nami. Nasi specjaliści odpowiedzą na wszystkie Twoje pytania.
Zadzwoń teraz lub skorzystaj z formularza poniżej
Pozostałe produkty w tej kategorii
Hydrauliczne widły teleskopowe TGZ stanowią optymalne rozwiązanie w wielu sytuacjach transportowych i załadunkowych. Towar znajdujący…
Zobacz więcej
Model RZV-TGZ jest połączeniem pozycjonera i wideł teleskopowych co umożliwia szybkie i opłacalne składowanie oraz…
Zobacz więcej
RZV-S-TGZ to połączenie pozycjonera z widłami teleskopowymi, które umożliwia szybki i redukujący koszty załadunek oraz…
Zobacz więcej
Pozycjoner z przesuwem niezależnym PZV-S-TGZ jest zbudowany na profilach T. Kompaktowa konstrukcja daje świetną widoczność…
Zobacz więcej
Pozycjoner z przesuwem niezależnym PZV-SI-TGZ jest zbudowany na profilach T. Kompaktowa konstrukcja daje świetną widoczność…
Zobacz więcej
Pozycjoner wideł PZV-TGZ jest zbudowany na profilach T. Kompaktowa konstrukcja daje świetną widoczność i niezawodność.…
Zobacz więcej
Model ZVP-S-TGZ to połączenie pozycjonera z widłami teleskopowymi, które umożliwia szybki i redukujący koszty załadunek…
Zobacz więcej
Model ZVP-TGZ to połączenie pozycjonera z widłami teleskopowymi, które umożliwia szybki i redukujący koszty załadunek…
Zobacz więcej
Pantograf typ VGT umożliwia załadunek pojazdu z jednej strony. Stabilna konstrukcja pozwala na bezpieczne załadowanie…
Zobacz więcej
Urządzenie Push Pull typ KA jest zaprojektowane do przenoszenia ładunków umieszczonych na podkładach. Montaż na…
Zobacz więcej