Opis produktu
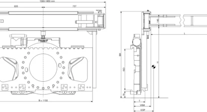
Obrotnica typ DG-ST-K jest wyposażona w ręcznie składane boczne ramię, które wspiera pojemnik podczas procesu obracania. Ramię można regulować odpowiednio dla pojemników o szerokości 1200-2250 mm. Ramię można zdemontować z jednej strony i zamontować z drugiej strony. Obracane pojemniki muszą być wyposażone w kieszenie wjazdowe na widły, aby nie zsunęły się podczas obrotu. Obrotnica nie służy do chwytania pojemników. W celu zapoznania się z ofertą na urządzenia służące do chwytania i obracania pojemników zobacz: chwytak do skrzyniopalet DGE lub obrotnica typu DG-BK.
Tabela bez przesuwu bocznego
| typ | udźwig kg/mm LC | sugerowany udźwig kg/mm LC | ISO | szerokość B mm | ramię h x t x L mm | moment obrotowy ΔP 130 bar | łączna wysokość* mm | szer. pojemnika mm | T mm | V mm | ESP mm | waga kg |
|---|---|---|---|---|---|---|---|---|---|---|---|---|
| DG 20-ST-K | 2000/500 | 1,0-2,0/500 | II | 1150 | 140x70x1200 | 5200 | 970 | 1200-2250 | 117 | 190 | 83/122 | 374 |
| DG 25-ST-K | 2500/600 | 2,5/600 | II | 9400 | 970 | 120 | 198 | 80/112 | 410 | |||
| DG 30-ST-K | 3000/500 | 3,0/500 | III | 1150 | 140x70x1200 | 9400 | 1010 | 130 | 198 | 83/114 | 455 | |
| DG 35-ST-K | 3500/500 | 3,0/600-3,5/500 | III | 11700 | 1010 | 135 | 203 | 87/118 | 465 |
- 1 funkcja hydrauliczna
- wyposażony w węże i szybkozłączki od strony osprzętu
- zawór bezpieczeństwa w standardzie
- dopłata za uchwyty szybkozłączne: 580,- Euro (ISO II), 660,- Euro (ISO III)
- urządzenie bez wideł
- należy zastosować widły wzmocnione specjalnie do pracy z obrotnicą
* odnosi się do ISO 2328 A
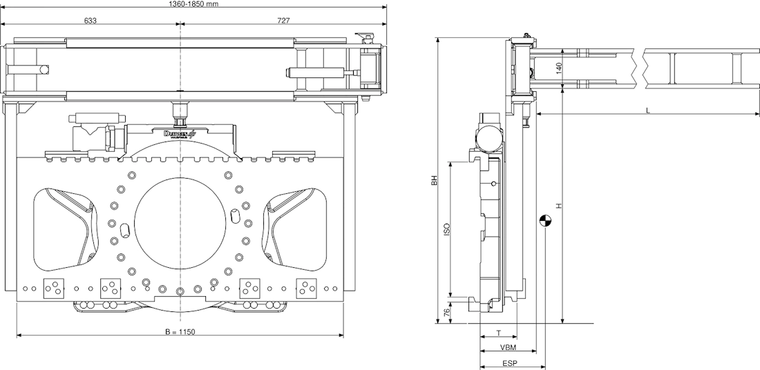
Tabela z niezależnym przesuwem bocznym
| typ | udźwig kg/mm LC | sugerowany udźwig kg/mm LC | ISO | szerokość B mm | ramię h x t x L mm | moment obrotowy ΔP 100 bar | łączna wysokość* mm | szer. pojemnika mm | przesuw mm | T mm | V mm | ESP mm | waga kg |
|---|---|---|---|---|---|---|---|---|---|---|---|---|---|
| DG 20-S-ST-K | 2000/500 | 1,0-2,0/500 | II | 1150 | 140x70x1200 | 5200 | 970 | 1200-2250 | +/- 100 | 166 | 239 | 119/154 | 424 |
| DG 25-S-ST-K | 2500/600 | 2,5/600 | II | 9400 | 970 | +/- 100 | 149 | 229 | 102/133 | 455 | |||
| DG 30-S-ST-K | 3000/500 | 3,0/500 | III | 9400 | 1010 | +/- 100 | 175 | 243 | 115/142 | 520 | |||
| DG 35-S-ST-K | 3500/500 | 3,0/600-3,5/500 | III | 11700 | 1010 | +/- 100 | 180 | 248 | 118/145 | 530 |
- 1 funkcja hydrauliczna
- wyposażony w węże i szybkozłącza od strony osprzętu
- zawór bezpieczeństwa w standardzie
- niezależny przesuw boczny w standardzie
- dopłata za uchwyty szybkozłączne: 580,- Euro (ISO II), 660,- Euro (ISO III)
- urządzenie bez wideł
- należy zastosować widły wzmocnione specjalnie do pracy z obrotnicą
* odnosi się do ISO 2328 A
Potrzebujesz więcej informacji?
Skontaktuj się z nami. Nasi specjaliści odpowiedzą na wszystkie Twoje pytania.
Zadzwoń teraz lub skorzystaj z formularza poniżej
Pozostałe produkty w tej kategorii
Obrotnica typ DG jest zbudowana z masywnego, stalowego odlewu. Przekładnia ślimakowa w jednym momencie styka…
Zobacz więcej
Obrotnica typ DG-S jest zbudowana z masywnego, stalowego odlewu. Przekładnia ślimakowa w jednym momencie styka…
Zobacz więcej
Obrotnica DG-BK ma przykręcane stabilizujące ramię dociskowe, aby przytrzymać pojemnik na widłach. Jest to odpowiednie…
Zobacz więcej
Chwytak do skrzyniopalet typ DGE służy do opróżniania skrzyniopalet i innych pojemników. Widłami, które mają…
Zobacz więcej
Obrotnica typ DG-F jest zbudowana z masywnego, stalowego odlewu. Przekładnia ślimakowa w jednym momencie styka…
Zobacz więcej
Obrotowy pozycjoner wideł typ DZVW-GF ma zakres obrotu 360 stopni i jest wyposażony w widły…
Zobacz więcej